Informations générales
GILLY SUR ISERE |
|
45 |
|
Appartement |
|
0 |
|
2 |
|
0 |
|
45m² |
|
73200 |
|
GILLY SUR ISERE |
|
Non |
|
Binet |
|
0 |
205,000.00 €*
45
GILLY SUR ISERE |
|
45 |
|
Appartement |
|
0 |
|
2 |
|
0 |
|
45m² |
|
73200 |
|
GILLY SUR ISERE |
|
Non |
|
Binet |
|
0 |
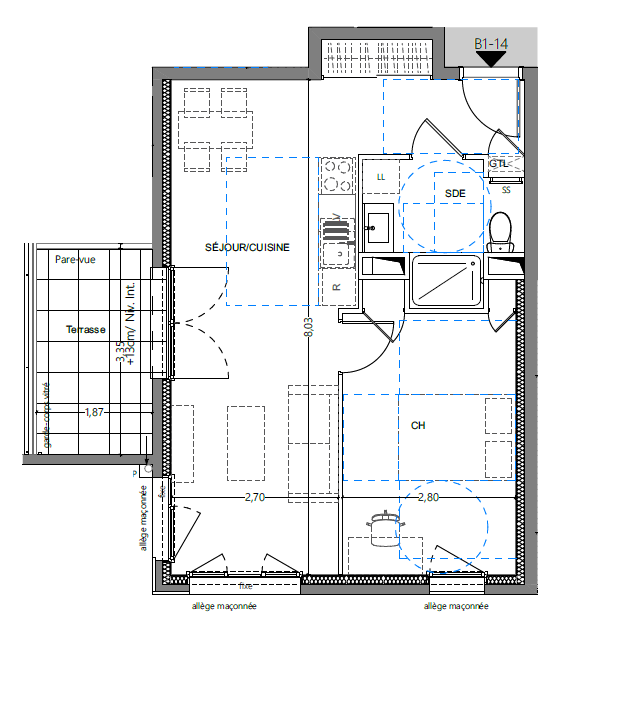
GILLY SUR ISERE - T2 dans résidence récente proche de la mairie.
Situé au 1er étage d’une résidence récente, cet appartement 2 pièces allie confort moderne, performance énergétique espace extérieur.
A 2 minutes de la voie rapide et 5 minutes de l'autoroute.
A moins de 10 minutes du centre ville d'Albertville
Côté habitation:
- Séjour / Cuisine : 27 m2
- Chambre : 12 m2
- Salle d’eau : 5 m2
- Terrasse exposée sud-ouest: 6,5m2
Informations complémentaires:
- Résidence neuve, prestations modernes
- Chauffage et eau chaude via chaudière collective bois
- Menuiseries modernes avec volets roulants
- Agencement optimisé, sans perte d’espace
Idéal pour un premier achat ou un investissement, dans un environnement calme à proximité des commodités et axes principaux.
Une annonce du GROUPE RD IMMO
Contactez Maud BINET, agent commercial immatriculée sous le numéro 905083101 au :
O6 95 09 83 86 ou m.binet@groupe-rdimmo.fr
Agence Aix les Bains :
95 Boulevard du Lac – Grand Port 73100 – Aix Les Bains
26 square du temple de diane – centre ville – 73100 Aix les Bains
Téléphone : 04 58 39 00 35
Agence Annecy :
2 rue des Glières 74000 Annecy
Téléphone : 04 58 39 00 35
Agence Chambéry :
44 Faubourg Reclus 73000 Chambéry
Téléphone : 04 58 39 00 35
Agence Rumilly :
13 Place de l’Hôtel de ville, 74150 Rumilly
Téléphone : 04 58 39 00 35
Nos agents indépendants sont présents sur les secteurs suivants :
Bourg-en-Bresse
Téléphone : 04 58 39 00 35
Paris
Téléphone : 04 58 39 00 35
Marseille
Téléphone : 04 58 39 00 35
Annecy
Téléphone : 04 58 39 00 35

Biviers – Appartement de standing – Terrasse – Garage| Cookie | Durée | Description |
|---|---|---|
| cookielawinfo-checkbox-analytics | 11 months | This cookie is set by GDPR Cookie Consent plugin. The cookie is used to store the user consent for the cookies in the category "Analytics". |
| cookielawinfo-checkbox-functional | 11 months | The cookie is set by GDPR cookie consent to record the user consent for the cookies in the category "Functional". |
| cookielawinfo-checkbox-necessary | 11 months | This cookie is set by GDPR Cookie Consent plugin. The cookies is used to store the user consent for the cookies in the category "Necessary". |
| cookielawinfo-checkbox-others | 11 months | This cookie is set by GDPR Cookie Consent plugin. The cookie is used to store the user consent for the cookies in the category "Other. |
| cookielawinfo-checkbox-performance | 11 months | This cookie is set by GDPR Cookie Consent plugin. The cookie is used to store the user consent for the cookies in the category "Performance". |
| viewed_cookie_policy | 11 months | The cookie is set by the GDPR Cookie Consent plugin and is used to store whether or not user has consented to the use of cookies. It does not store any personal data. |
